Skip to content
STEPHENVARADY_ARCHITECTURE
Toggle Sidebar
March 31, 2018
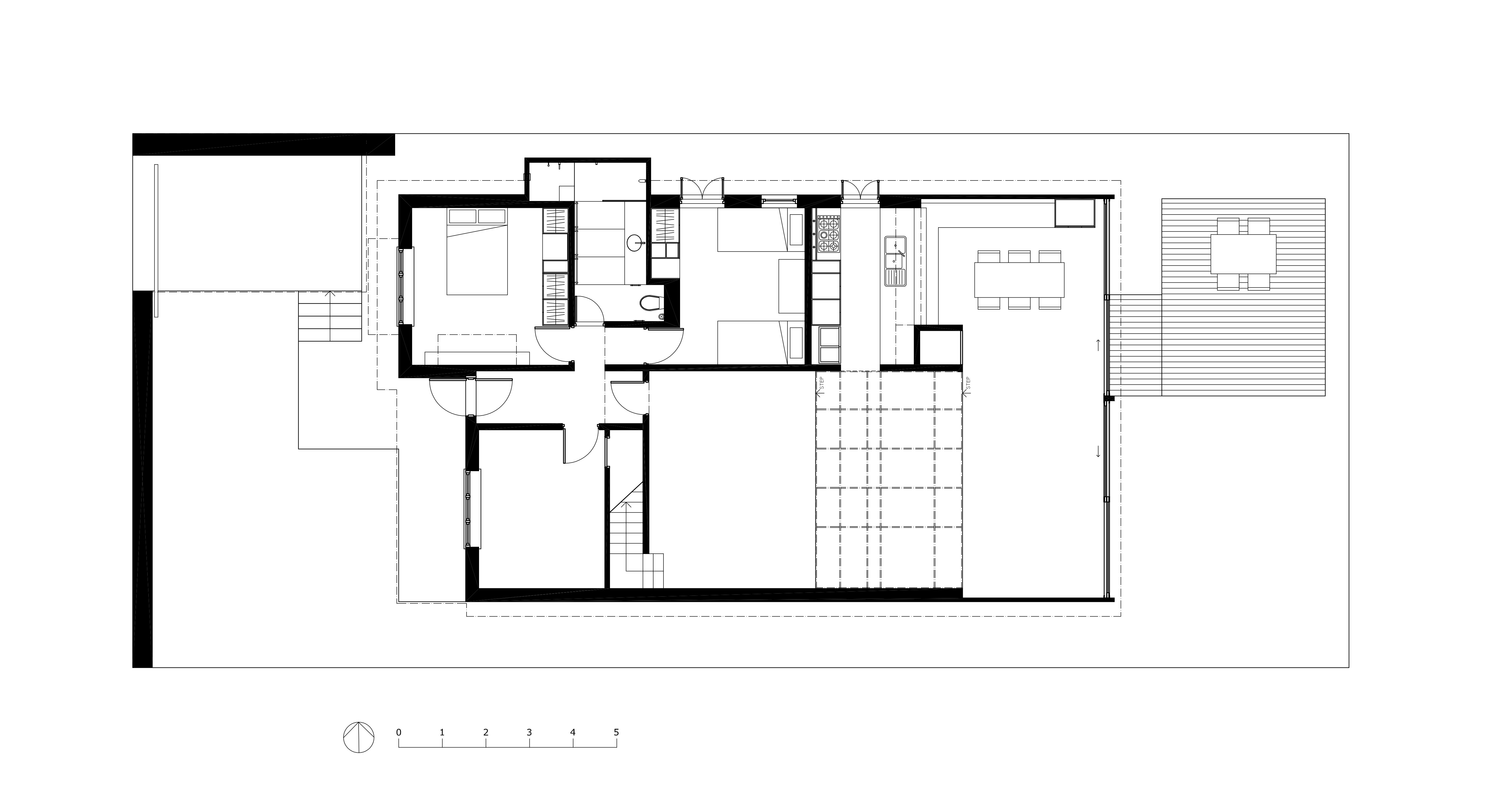
McCarthy Residence_plan 0_ground floor_Stephen Varady Image ©
Leave a comment
Cancel reply
Δ
Post navigation
←
McCarthy Residence
Menu
ABOUT
CONTACT
STEPHENVARADY_NEWS
Peter Raisbeck: surviving the design studio
architecture, technology, research and design activism
BOB
Comment
Subscribe
Subscribed
STEPHENVARADY_ARCHITECTURE
Sign me up
Already have a WordPress.com account?
Log in now.
STEPHENVARADY_ARCHITECTURE
Subscribe
Subscribed
Sign up
Log in
Copy shortlink
Report this content
View post in Reader
Manage subscriptions
Collapse this bar