(HOUSING – BUILT – MELBOURNE)
The work continues an ongoing exploration of form, space, experience, material, light, and the suburban condition.

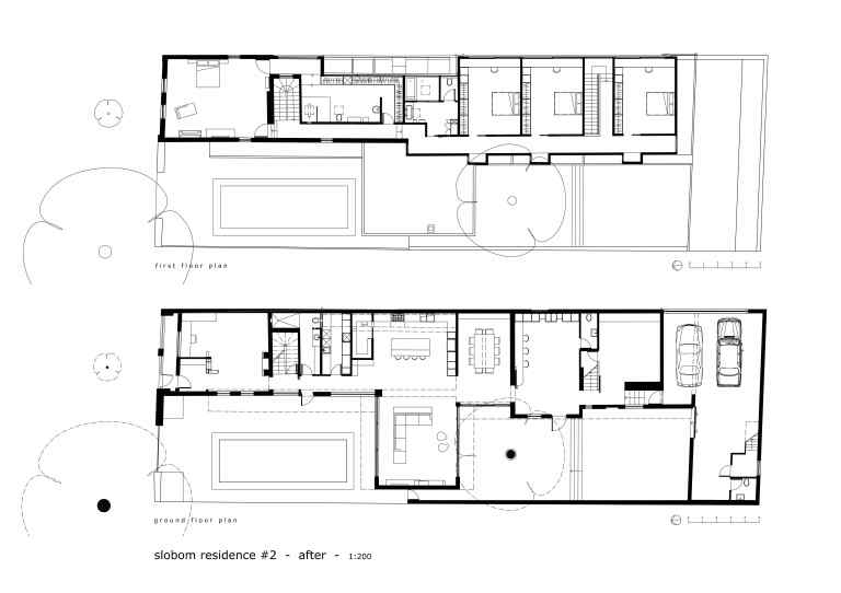
The work is a family house in Melbourne, the 2nd project for this family.
The work is like a choreography between the owners, the architect and the builder – an act of belief, of faith, and of trust, an ongoing journey built on previous experiences.
The work is shaped and formed, it is hammered and pounded, it is sliced, hacked, pushed and pulled, and moulded, it is massaged and manipulated and sculpted. The work is a graft – a grafting of new onto old – to bring new life to a historic building that was neglected and stunted and dying. Sections of the existing have been retained, repaired, restored and rejuvenated, and a series of new volumes added.

The new façades are unpretentious, allowing the richness of the rejuvenated old walls to come to the fore – a strong but sympathetic sculptural composition of old and new, allowing the building to reclaim its presence within the neighbourhood.


The work is also a carefully composed sequence of spaces – of varied shapes, volumes and proportions, with each space carved to suit the desired functions.



These are compositions of space, light, material, geometry, colour, texture, and sound, but they are also very much about what is experienced.




The work is created as a receptacle for the experiences of living – a world of its own, to inhabit and enjoy, to grow up and grow old in; a place of openness and generosity for family and friends, but also a place of sanctuary; of intimacy and privacy, with an equal feeling of security and serenity.




The work believes in ideas and attempts to engage with some ideas that have fallen through the cracks of history.





The work is both a synthesis of the owners’ wants and needs, and an analysis of the site, the history, the environment, existing conditions, regulations, precedent and typology.



The living area deliberately and solely steps out to engage with, and embrace, the entire site to the north and the south, but it can also be closed off with blinds and curtains to become a cocoon.




The work is crafted – painstakingly and precisely. It is crafted in the traditional sense, but with contemporary means and materials and techniques.



These are spaces that can equally contain vigorous, energetic encounters or quiet, contemplative solitude.


Walls and windows have been carefully arranged to frame close and distant views inside and outside the site, and light filters through the spaces creating an overall atmosphere of tranquillity and serenity.



Pop-out windows on the western façade open to the north to catch the sun and maintain privacy with the western neighbour. They create filtered lightboxes in the corridor outside the children’s bedrooms which are also personal spaces for each child.



3 bedrooms for 3 children to enjoy and grow up in over the next 10 years.


Horizontal eastern views over a long workbench, and north-facing pop-up windows for sunshine and cross ventilation.



The work has big ideals and explores grander notions, sometimes at a minute scale.





The work brings forth unforeseen possibilities…







The work is a family house in Melbourne for a couple with 3 young children – a house that will become the family home.
DRAWINGS







IMAGES
Go to the MENU (above right) to sign up to receive regular posts.
And you may also like to view the links below:
ABOUT STEPHENVARADY_ARCHITECTURE
ALSO HAVE A LOOK AT STEPHENVARADY_ARCHITRAVELLER
ALSO HAVE A LOOK AT STEPHENVARADY_INTERIORTRAVELLER
ALSO HAVE A LOOK AT STEPHENVARADY_CREATIVITYBLOG