(HOUSING – BUILT – SYDNEY)
A new home for an art dealer, his wife, 5 year old child + 2 teenage sons from a previous marriage. Complete renovation of 275m², 4 bedroom apartment on one whole floor beside Sydney Harbour. Abstraction meets traditional. Interplays of horizontal + vertical elements; natural + artificial light; open + closed, and public + private spaces. Light + dark. Stone, brass, timber and glass. Michelangelo meets Malevich, Mies van der Rohe meets Carlo Scarpa, Adolf Loos meets Joseph Hoffmann, Gio Ponti meets John Soane and Florence Knoll, along with many others… A strategy to create interiors of mystery and magic in which the owners can experience far more than just the incredible view.

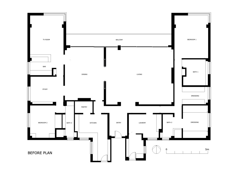
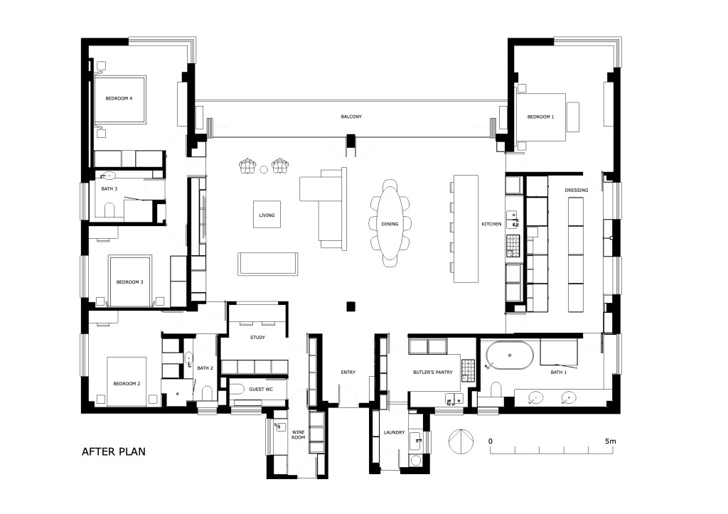
The overall design began with a series of simple but significant adjustments to the plan. Moving the kitchen from the south to directly engage with the living / dining area, the sunshine and the northern outlook to the harbour; consolidating the smaller dressing rooms, corridors and bathrooms into a pair of luxurious spaces; and repurposing the old kitchen for wine storage, an opulent guest bathroom and a study with mirrored bifold window allowing for harbour views or privacy.





KITCHEN






ENTRY



LIVING
Incorporated into the various functional requirements are several geometric explorations. For instance, the horizontal living / dining / kitchen space and the panoramic view are complemented by the composition of vertical walls and columns. The space appears symmetrical but is different in size and proportion from east to west so the sculptural compositions of the joinery and ceiling lighting ducts respond accordingly. There is a rhythm in the overall composition, inspired by music, where different rhythmic patterns are juxtaposed or overlaid on each other.





STUDY




BEDROOM 1




DRESSING




BATHROOM 1






BATHROOM 1 – NATURAL LIGHT MAKEUP AREA



BEDROOM 2


BATHROOM 2





BEDROOM 4




BATHROOM 3


GUEST POWDER ROOM




BUTLER’S PANTRY


This design is a continuation of Stephen Varady’s architectural direction where ‘the experience’ of space and place underpins all design decisions. Inspired by Russian Constructivist ‘Architektons’ from 1920 by Kazimir Malevich, the design is a complex and sensitive intertwining of abstract sculptural compositions, and practical functionality, where substantial materials are carefully crafted into positive, uplifting spaces of magic and mystery where the owners would be able to experience far more than just the incredible view.
Photographs by Richard Glover, Alexander Mayes and Stephen Varady ©
(Entire project designed, detailed, documented and directed by Stephen Varady)
Go to the MENU (above right) to sign up to receive regular posts.
And you may also like to view the links below: