(HOUSING – BUILT – SYDNEY)
This project is an exploration of compressed spaces, designed to feel larger than they really are, and continues an ongoing exploration of the ‘framed view’.


In 1969, architect Glenn Murcutt designed an alteration/addition to the rear ground floor of this suburban bungalow to become his own house and first project. A Mies-ian inspired work, his design removed all internal walls channelling the focus of attention to the garden outside.

Since Murcutt took the Farnsworth House by Mies van der Rohe as his inspiration for the rear alteration, I took the Barcelona Pavilion by Mies as the inspiration for the new carport at the front.



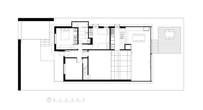
The brief was to revitalise the ground floor with refurbishments to the bathroom, children’s bedrooms and kitchen, and to add a private parents’ bedroom suite on a new first floor, containing a study/home office, bedroom, bathroom, and dressing room.








The first-floor addition takes its initial cues from the Murcutt approach, by also channelling the view to the garden at the rear – a view that is completely screened from the neighbours by existing trees. The extension of the view is further explored through the glazed layering of the relatively modest spaces of the addition.


The access hallway is 1.5m wide and lined with cupboards creating a dressing room that runs along the full length of the northern side, framing the view of the garden at the end. Highlight windows run down the north and south sides allowing natural light, ventilation and views of the sky from all spaces while ensuring complete privacy from close neighbours.



The study is deliberately private with the Frank Lloyd Wright inspired ring of highlight windows, focusing attention on the work at the desk.

The design introduces a courtyard between the bedroom and bathroom with each space ‘borrowing’ from the other to create an illusion of a much greater space in each. Therefore, the bathroom is not merely 1.5m wide because it ‘borrows’ space from the 1.8m courtyard, and looks through to the bedroom and the trees beyond.

Glass is the main material in the new extension. It is used as a transparent, translucent and solid material – with both its transparency and reflectivity taken full advantage of. The perception of space is increased through the use of glass, with each space ‘borrowing’ light and space from the others.


The courtyard floor is laminated translucent glass – filtering natural light to the refurbished living room below.

In the bathroom, glass is used as a solid cladding material with the walls and floor lined in white ‘Colourback’ glass. Due to the natural green tint of glass, the bathroom takes on a green tone which complements the ‘water’ theme of the space. Glass technology is explored further in the design of the clear glass bath.






The bedroom has a single 3m high x 3.6m wide steel-framed glazed sliding door. It is detailed to slide on the outside of the house, to conceal the frame and better connect the bedroom with the garden, perhaps creating an illusion of sleeping in the canopy of the trees.





IMAGES
DRAWINGS
Go to the MENU (above right) to sign up to receive regular posts.
And you may also like to view the links below:
ABOUT STEPHENVARADY_ARCHITECTURE
ALSO HAVE A LOOK AT STEPHENVARADY_ARCHITRAVELLER
ALSO HAVE A LOOK AT STEPHENVARADY_INTERIORTRAVELLER
ALSO HAVE A LOOK AT STEPHENVARADY_CREATIVITYBLOG