(HOUSING – BUILT – MELBOURNE)

The Slobom #1 Residence is an alteration/addition to an existing 1960’s warehouse. The ground floor and part of the first floor on the Garden Street frontage was retained as commercial premises, with the rest of the building converted to a quiet, contemporary, inner-urban residence.

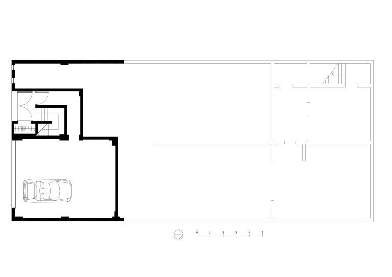
Entry and parking for the residence is via the rear lane.


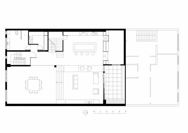
A stair leads up to the main living level which contains living, dining and kitchen areas opening to a private northern courtyard. While these spaces all flow into each other, their volumes vary reflecting their uses.






The living area, with a new ceiling, is the highest space; the dining area, in a raised section, has the lowest ceiling; and the kitchen is in between.


The design is a sculptural composition of elements, best exemplified by the kitchen storage wall with its irregular arrangement of handles and doors concealing storage and the sewing room behind.




This main level also contains the laundry and the bathroom.


All the existing windows to the lane were retained, with the clear glass replaced by translucent glass to allow for natural light while maintaining privacy from the lane and carpark opposite. The bathroom joinery was designed to match the geometry of the existing window frames.







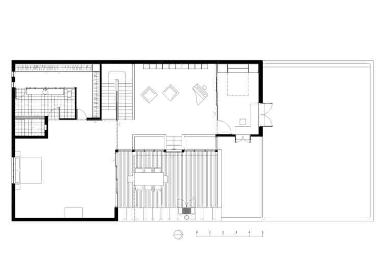
Over the original first floor a new level was built to contain the main bedroom, en-suite, dressing room, study/guest bedroom, and the library – all opening to the north-facing exterior timber deck. The areas on this level flow into each other while allowing the possibility for smaller, more private spaces being created with the use of sliding screens, panels and louvres.







The wall of the en-suite is glazed allowing for light to flow through to the dressing room.





This design has created a contemporary urban residence (in a previously run-down industrial building) that responds both to the orientation and climate of its location, as well as to the non-traditional needs for living required by a young married couple at the end of the twentieth century.

DRAWINGS





IMAGES
Drawings
Go to the MENU (above right) to sign up to receive regular posts.
And you may also like to view the links below:
ABOUT STEPHENVARADY_ARCHITECTURE
ALSO HAVE A LOOK AT STEPHENVARADY_ARCHITRAVELLER
ALSO HAVE A LOOK AT STEPHENVARADY_INTERIORTRAVELLER
ALSO HAVE A LOOK AT STEPHENVARADY_CREATIVITYBLOG